
在國內市場日漸飽和的趨勢下,許多有實力的凸輪轉子泵生產廠家會轉向國外的市場。青島羅德產品憑借過硬的質量通過了必維檢測,將中國制造的凸輪轉子泵推向世界。
青島羅德通用機械設備有限公司通過此項目為中國海油伊拉克米桑油田提供了汽柴油卸車泵,在整個項目運作的過程中,我們認識到了國內產品與世界認證標準的差距。但是,青島羅德憑借先進的制造水平,與設計方充分溝通,每一只零配件,每一步加工過程嚴格把關,順利通過了業主委托的第三方必維國籍檢測集團的檢測認證,羅德品牌凸輪轉子泵成功走出國門。

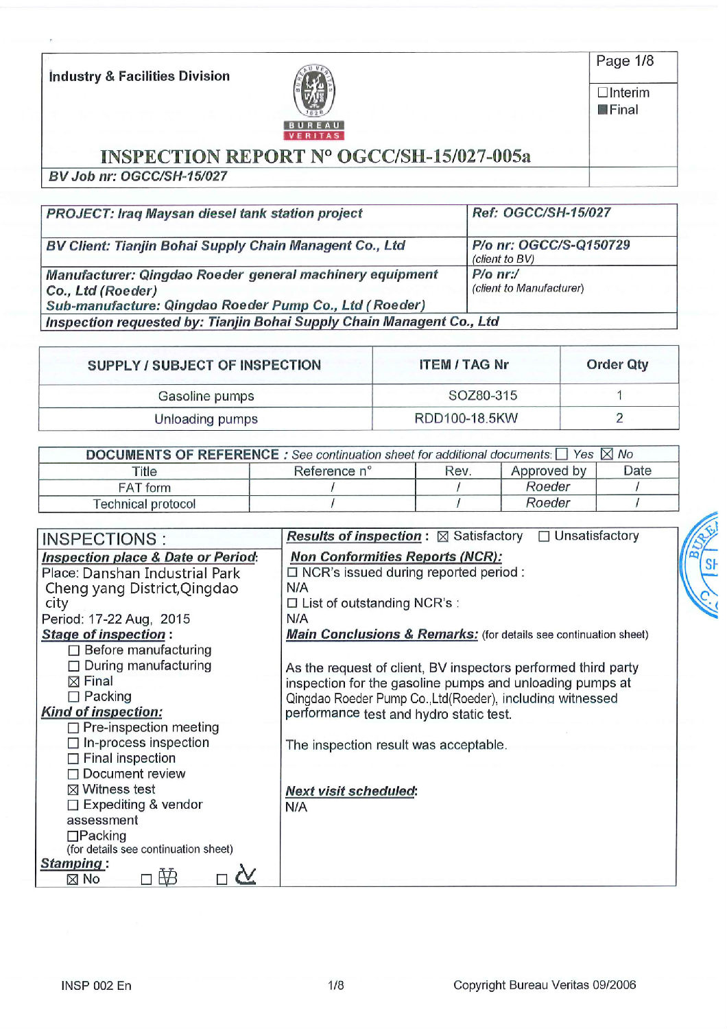
必維國際檢測集團(BV)認證報告
通過這個項目,我們深刻意識到,現階段國內石油石化裝備制造業存在的問題,主要體現在:
1、在海外石化工程項目中,我國裝備制造企業能進入供應商名單的依然比較少。在中東國家的石油公司供應商名單中,國內供應商能進入的只占3%;在東南亞的石油公司供應商名錄中,國內供應商占20%左右;其他國家石化企業的供應商名錄中,國內供應商就更少了。
2、技術創新能力弱是制約我國石化裝備制造企業走出去的主要原因之一。與國際同行相比,研發資金投入偏少,高端設備難以突破,亟須加大產品開發投入力度,重視對相關材料、技術、工藝、產品的超前研發和創新,以開發高性能、專業化、系列化的具有自主知識產權的裝備。

青島羅德中石油物資供應商準入證
3、裝備供應商一定要有ISO9000質量體系認證,這是對制造企業最基本的需求;再加上行業的要求,要有API(美國石油學會)體系認證,相關船級社認證;要培養并鼓勵供應商汲取TS16949質量體系工具理念的精髓、LEAN(精益生產)理念并應用到石化裝備制造過程中,這樣才能真正提升競爭力
4、我國石化裝備制造企業對質量體系控制的持續性較差,首臺(套)設備制造后,有些產品的質量控制就會變差。
5、國內與國外相比,產品質量差距明顯,相關設備在試車時發生升溫過高、密封處泄漏、噪音大等問題,可靠性比較差;閥門發生泄漏的情況比較普遍,有些在試壓時就發生泄漏,海外工程涉及到運輸,因此時間和費用都令承包商難以承受。
6、海外項目都有合同約定的外國語言,有些國內制造商提供的文件語言文字混亂,安裝、操作、維護手冊過于簡單,缺乏必要的插圖,不能很好地指導操作和維修,這也是亟待解決的問題。
通過以上6點分析,國內凸輪轉子泵廠家在發展中應該意識到要以國際制造標準嚴格要求企業的制造工藝,同時在相關資質文件方面實事求是。建立、推行、持續改進企業管理體系,不僅還包括環境管理體系、職業健康安全管理體系、信息安全管理體系,希望國內裝備企業按照國外的先進標準來構建自己的環境管理體系、職業健康安全管理體系等,還要加強社會責任方面的建設。
優質的產品是企業最好的廣告,青島羅德品牌秉承這一理念,對于凸輪轉子泵從零配件甚至從噴漆最細節工作中嚴格要求,細節決定成敗,細節同樣可以體現工藝水平,進而彰顯企業實力。